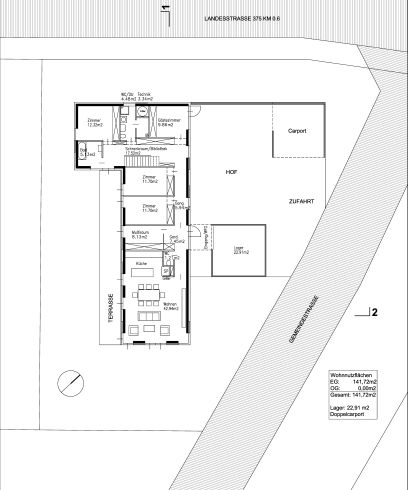
Haus K&F
Markus Kormann, Doris Fasser
Dobl/Graz, Steiermark, AT
2007 - 2008